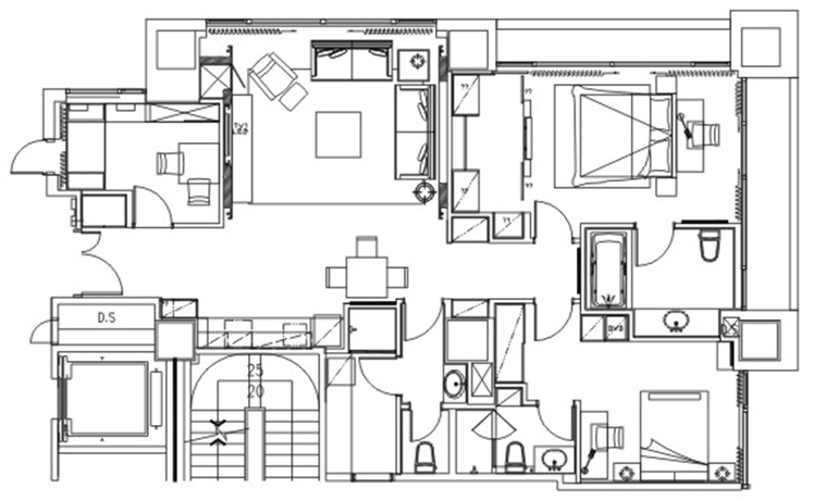
TYPE B 214M2 2 BEDROOMS/1 LIVING ROOM/1 STUDY ROOM/1 MAID ROOM

ROOM LAYOUTS

This unique 214 sqm apartment in Tower A (Floors 4-16) features 2 bedrooms, a study, and a maid's room. Unfurnished, with club access, internet, and cable TV included. Ideal for families with domestic helpers. Utilities are additional.

ROOM FEATURES

Unfurnished apartment located on floors 4-16 of Tower A
214 sqm | 2 Bedrooms + Living Room + Study + Maid's Room


►Rent includes:
Club access
Internet
Cable TV

►Additional Charges:
Parking
Housekeeping
Water
Electricity and gas (metered)

►Note:
Other additional charges apply for optional services.

TYPE B PLAN

ROOM
INQUIRY